四国中央市上柏町戸建て

3,980万円

愛媛県四国中央市上柏町

予讃線「伊予三島」駅徒歩21分

価格
3,980万円
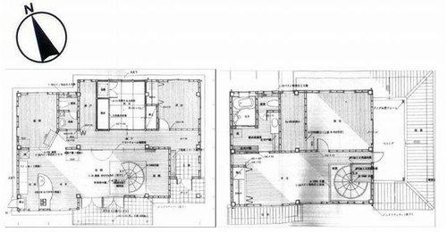
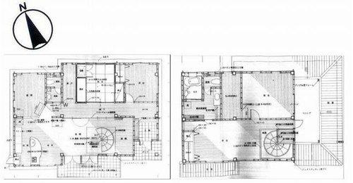
間取り/建物面積
5LDK/196.04㎡
所在地
愛媛県四国中央市上柏町
築年
2003年1月(築22年)
駐車
交通

予讃線伊予三島」駅 徒歩21分

四国中央市上柏町戸建ての基本情報

物件名
四国中央市上柏町戸建て
価格
3,980万円
建物面積
196.04㎡
土地面積
190.17坪(628.68㎡)
築年月
2003年1月(築22年)
総戸数
-
所在地
愛媛県四国中央市上柏町
交通

予讃線伊予三島」駅 徒歩21分

四国中央市上柏町戸建ての詳細情報

設備条件
  • 閑静な住宅地
設備(その他)
    -
駐車場/月額
無/-
土地権利
所有権
国土法届出
不要
用途地域
第一種住居
取引態様
一般媒介
引渡し
相談

四国中央市上柏町戸建てで募集中の物件

  1. 59.30坪 (196.04㎡)

    3,980万円(67.12万円/坪)

四国中央市上柏町戸建て

お気軽にお問い合わせください

無料お問い合わせ

あなぶき不動産流通 松山店

089-986-8484

9:00~18:00

(休:火曜・水曜・祝日)